Mieszkanie Szklarska Poręba, Szklana
Szklarska Poręba Pokaż na mapie ›
Dodane: Środa, 14 Styczeń, 2026 14:04
667 375 zł
12592 zł/m2
Szczegóły ogłoszenia
- Kategoria: Mieszkania / Sprzedaż
- Powierzchnia:53 m2
- Liczba pokoi:3 pokoje
- Zabudowa:Apartamentowiec
- Tech. budowy:Inne
- Piętro :1 piętro
- Liczba pięter:2 piętra
- Rynek:Pierwotny
- Sprzedaż:Pośrednik
- Cena: 667 375 zł / 12592 zł/m2
Opis oferty
Opiekun Oferty:Patryk Ciepielewski
Tel: +48 602 - pokaż numer telefonu -
Pośrednik Obrotu Nieruchomościami
Nr Licencji PFRN 29563
Apartamenty z widokiem na Izery i Karkonosze idealne na własny wypoczynek oraz inwestycję.
Nowa inwestycja w jednej z najbardziej malowniczych części Szklarskiej Poręby Biała Dolina, z zapierającymi dech widokami na Karkonosze, Góry Izerskie i trasę narciarską na Szrenicy. Doskonała propozycja dla osób szukających spokojnego miejsca blisko natury oraz dla inwestorów zainteresowanych wynajmem krótkoterminowym.
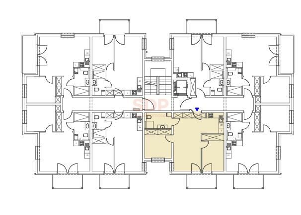
Apartament, którego dotyczy ogłoszenie, znajduje się na 1. piętrze i ma powierzchnię 53,39 m.
Zestawienie powierzchni:
- Salon z aneksem kuchennym: 27,20 m
- Sypialnia: 10,58 m2
- Sypialnia: 10,10 m2
- Łazienka: 5,35 m
- Balkon: 5,87 m
Lokalizacja i otoczenie:
Bezpośrednie sąsiedztwo tras pieszych, biegowych i rowerowych, kolej Izerska w pobliżu szybkie połączenie z Jakuszycami, piękne lasy Gór Izerskich i bliskość natury dosłownie na wyciągnięcie ręki blisko centrum Szklarskiej Poręby, a jednocześnie cisza i przestrzeń w sąsiedztwie kort tenisowy i liczne atrakcje turystyczne.
Widok z apartamentów obejmuje m.in.: Szrenicę, Halę Szrenicką, trasy narciarskie Śnieżynka i Lolobrygida.
Inwestycja i budynki:
- Kameralny kompleks składa się z trzech budynków, w których oferowane są apartamenty o powierzchni od 30 do 58 m. Możliwość łączenia lokali w większe układy.
Budynki zaprojektowano w nowoczesnym stylu, z dużymi przeszkleniami eksponującymi widok. Zastosowano:
- ogrzewanie podłogowe
- wysokie parametry termoizolacji (XPS, EPS, wełna min. 20 cm)
- system smart home,
- sterowanie ogrzewaniem przez WiFi
- wentylacja grawitacyjna
- winda w budynku
- nowoczesna kotłownia gazowa
Każdy apartament jest opomiarowany wg realnego zużycia (ogrzewanie, woda, prąd).
Udogodnienia dla mieszkańców:
- narciarnia z rowerownią,
- latem również wózkownia, bawialnia dla dzieci (ping-pong, piłkarzyki, strefa wypoczynkowa)
- zagospodarowane tereny zewnętrzne zieleń, chodniki, strefa rekreacyjna
- możliwość zakupu miejsca parkingowego oraz komórki lokatorskiej
Standard i stan prawny:
- pełna własność bez konieczności podpisywania umów operatorskich
- apartamenty oferowane w stanie deweloperskim
- opcja wykończenia pod klucz przez lokalny zespół architektów i wykonawców
- zarządca administracyjny, czynsz ok. 17 zł/m
Cena apartamentu: 667 375 zł netto + 23% VAT
Ceny dodatkowe (netto):
- komórka lokatorska: 20 000 zł
- miejsce postojowe zewnętrzne: 30 000 zł
- miejsce postojowe zadaszone: 40 000 zł
Rekomendacja Eksperta SDP Nieruchomości:
- spektakularne widoki
- bliskość natury i tras sportowych bez użycia samochodu
- nowoczesna technologia, komfort i oszczędność w eksploatacji
- opcja zakupu na własny wypoczynek lub w celach inwestycyjnych
- możliwy wynajem krótkoterminowy bez narzuconych umów
Niedostateczne środki? To nie problem: Pomagamy w uzyskaniu finansowania na tę i inne nieruchomości.
Zadzwoń i zapytaj o szczegóły.
Opiekun Oferty:
Patryk Ciepielewski
Tel: +48 602 - pokaż numer telefonu -
Pośrednik Obrotu Nieruchomościami
Nr Licencji PFRN 29563
Numer oferty: 43371
Sprawdź zainteresowanie tym ogłoszeniem
Wyświetlenia
Data dodania
Ostatnio widziany
Obserwujących
Wysłane zapytania
Odsłony telefonu
Powiadom o podobnych ogłoszeniach
Lokalizacja: Szklarska Poręba
Kategoria: Nieruchomości » Mieszkania » Sprzedaż
Cena: od 567500 zł do 767500 zł Powierzchnia : od 45 m2 do 61 m2
Chcę otrzymywać powiadomienia o nowych ofertach
- Wypromuj ogłoszenie
- Zgłoś naruszenie
- Drukuj ulotkę
- Edytuj/usuń ogłoszenie
- Udostępnij ogłoszenie
- Dodaj na Facebook






















