Pensjonat w sercu Szklarskiej Poręby sprzedam
Szklarska Poręba Pokaż na mapie ›
Dodane: Poniedziałek, 24 Listopad, 2025 08:26
3 700 000 zł
Szczegóły ogłoszenia
- Kategoria: Biura i lokale / Sprzedaż
- Powierzchnia:480 m2
- Sprzedaż:Bez pośredników
- Cena: 3 700 000 zł
Opis oferty
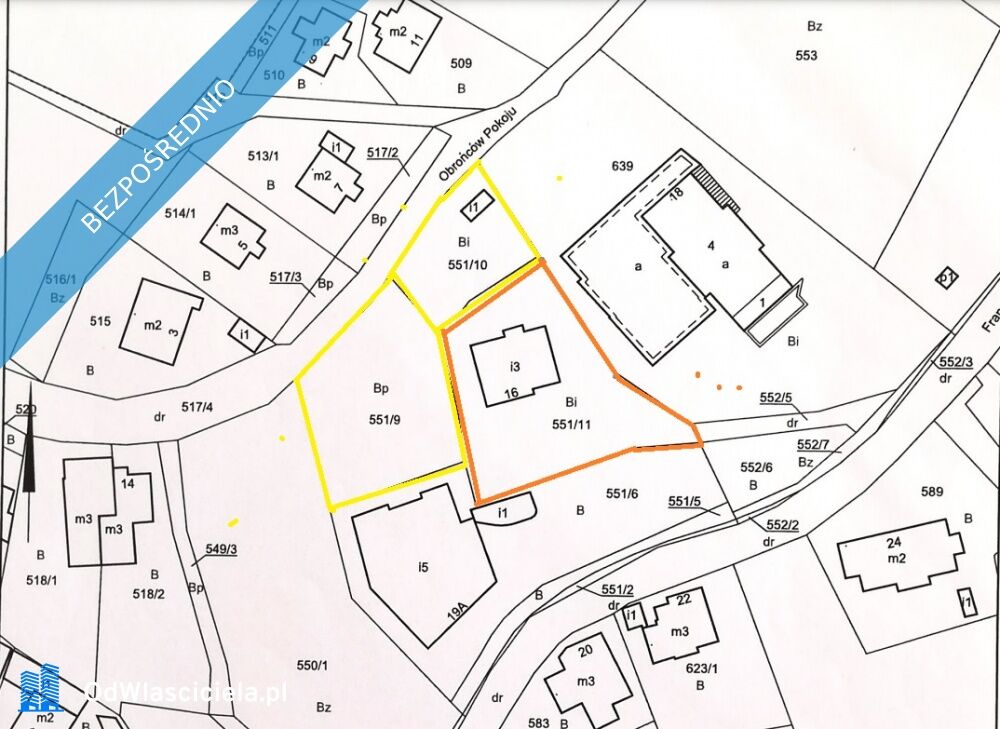
Sprzedam pensjonat w centrum Szklarskiej Poręby. pow500/działka 1270m2. Pensjonat w doskonałej lokalizacji, oceniany bardzo wysoko przez gości na popularnych platformach rezerwacyjnych, cieszący się dużym uznaniem gości ocena 9/10. Od ścisłego centrum z deptakami, sklepami, restauracjami to zaledwie kilka minut (300m) spacerem. Pensjonat ma nowe wyremontowane apartamenty z aneksami, jak również wygodne pokoje o standardzie hotelowym. W obiekcie duża sala jadalniano-bawialna i obsługujący ją blok kuchenny. Duży taras widokowy daje możliwość przyjmowania gości w tzw. "letniej sali restauracyjnej na powietrzu". Serdecznie zapraszam do kontaktu . UWAGA! Proszę biura nieruchomości o niekontaktowanie się w sprawie pośrednictwa. Sprzedaż od właściciela, bez prowizji. Możliwość dokupienia sąsiedniej działki usługowej. Zapytasz dlaczego sprzedaję? Odpowiadam-EMERYTURA. Zapraszam na WahatsApp 5.0.2.1.3.8.3.5.6, bądź w wiadomości na msn.Ogłoszenie dodane do wielu portali nieruchomości przez portal www.odwlasciciela.pl
Sprawdź zainteresowanie tym ogłoszeniem
Wyświetlenia
Data dodania
Ostatnio widziany
Obserwujących
Wysłane zapytania
Odsłony telefonu
Powiadom o podobnych ogłoszeniach
Lokalizacja: Szklarska Poręba
Kategoria: Nieruchomości » Biura i lokale » Sprzedaż
Cena: od 3145000 zł do 4255000 zł Powierzchnia : od 408 m2 do 552 m2
Chcę otrzymywać powiadomienia o nowych ofertach
- Wypromuj ogłoszenie
- Zgłoś naruszenie
- Drukuj ulotkę
- Edytuj/usuń ogłoszenie
- Udostępnij ogłoszenie
- Dodaj na Facebook
































